Rent Apartment Kristall Austria
Holiday Home Rental Description
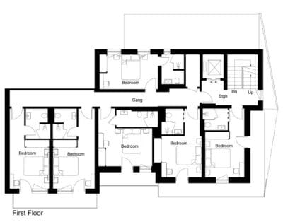
Located on the first floor, Apartment Kristall is an alpine haven that invites you to a mountain retreat where tradition meets modern comfort. The apartment seamlessly blends into the snowy landscape, offering direct access to the ski slope – a skier’s dream come true.
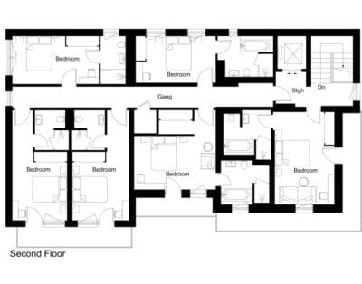
Constructed with a keen eye on tradition, the emphasis on wood during the build lends an authentic charm to the accommodation. The interior, adorned in classic alpine style, boasts five bedrooms, each with its own ensuite bathroom. Four of these are cosy double or twin rooms, while the fifth is a bunk bed haven for four, creating a space that easily accommodates 10 to 12 people.
The heart of Apartment Kristall is the open-plan kitchen and living room, a communal space designed for shared moments after exhilarating days on the slopes. The dining area, with a seating capacity for 12, invites you to relish delicious meals and recount the day’s adventures. The apartment caters to modern needs with WiFi, a flatscreen TV equipped with an Amazon Fire TV stick, and the option for a baby cot and highchair. A washing machine ensures convenience for longer stays, while luxury products in every bathroom add a touch of opulence.
Beyond the indoor comforts, the residence offers outdoor delights, including an alpine bio-sauna for the ultimate relaxation experience, while a table tennis setup promises fun-filled evenings with family and friends. In addition, parking your car is a breeze during your stay, thanks to the free underground garage which offers space for 2 vehicles.
Apartment Kristall is bursting with many amenities and services to elevate your stay. From a fully stocked kitchen on arrival to daily housekeeping, a welcoming bottle of champagne to a sweet regional afternoon snack, every detail is meticulously attended to. With a concierge service on-site and optional daily breakfast delivery in winter, this apartment isn’t just a place to stay; it’s a mountain retreat designed to make your alpine experience truly exceptional. The chalet is available year-round, but facilities, property and local amenities may vary depending upon season.
Winter | Ski Chalet
December – April
Apartment Kristall transforms into a winter wonderland during the snowy season. Its direct access to the ski slope makes it a haven for skiers, allowing them to seamlessly transition from the apartment to the powdery slopes. The classic alpine interior provides a cozy retreat after exhilarating days on the mountain. The communal kitchen and living room become a hub for sharing stories, while the dining area invites guests to relish delicious meals after a day of adventure. The alpine bio-sauna offers a perfect way to unwind, and the underground garage ensures hassle-free parking. With the option for daily housekeeping, a welcoming bottle of champagne, and the availability of a concierge service, Apartment Kristall is tailored to make winter stays truly memorable.
Summer | Alpine Chalet
June – September / October
As the snow gives way to lush greenery, Apartment Kristall transitions into a summer escape. The surrounding landscape offers hiking trails, mountain biking routes, and the chance to explore the beauty of the alpine region. The open-plan layout of the apartment becomes a bright and airy space, with the outdoor amenities taking centre stage. The alpine bio-sauna provides relaxation amidst nature, while the table tennis setup promises lively evenings. The fully stocked kitchen becomes a hub for preparing picnic lunches for outdoor adventures. The concierge service remains on hand to assist in planning summer activities, making Apartment Kristall a versatile mountain retreat for year-round enjoyment.
The Apartment
Interior
– Lounge space with sofas and TV
– Dining area with table and chairs
– Fully-equipped kitchen
– Bedroom with double bed (can be separated into 2 singles), ensuite bathroom with shower
– Bedroom with double bed (can be separated into 2 singles), ensuite bathroom with shower
– Bedroom with double bed (can be separated into 2 singles), ensuite bathroom with shower
– Bedroom with double bed (can be separated into 2 singles), ensuite bathroom with bathtub
– Bedroom with bunk beds (sleeps 4), ensuite bathroom with bathtub
Outdoor spaces
– Parking for 2 cars
Additional facilities
– Sauna
– Wifi
– Cot and highchair (available on request)
– Amazon fire stick
– Washing machine
– Bathrobes and slippers
– Table tennis
– Breakfast service (winter only)
– Concierge service
Nestled amidst the breathtaking landscapes of St. Anton, Apartment Kristall offers an enchanting escape into the winter wonderland of the Austrian Alps. Situated in the heart of the Arlberg, this charming accommodation is a gateway to the largest ski resort in Austria, boasting over 300 kilometres of marked slopes, 88 lifts, and gondolas, making it the fifth largest ski destination globally.
St. Anton, often hailed as the cradle of alpine skiing, caters to a diverse range of winter enthusiasts. Ski-tourers can revel in the majesty of the surrounding mountains, while adrenaline junkies have the option to book heli-skiing for an exhilarating experience. The town goes beyond traditional skiing, offering a 43-kilometre long cross-country skiing route and 80 kilometres of winter walks, allowing guests to immerse themselves in the serene snowy landscape.
For thrill-seekers, a natural toboggan-run weaves through magical wintry woods, offering a perfect blend of excitement and scenic beauty. With 87 modern lifts and gondolas, 304 kilometres of on-piste skiing, and 200 kilometres of off-piste adventures, St. Anton stands as the largest connected ski resort in Austria.
Winter activities extend beyond the snow-covered slopes, with options like winter or snowshoe hikes along 17 marked paths covering 80 kilometres. The Arlberg WellCom Centre in the town centre offers an artificial ice rink and a modern wellness temple, featuring an indoor pool, an outdoor sports pool, a waterfall, whirlpool, counter-current system, and a children’s pool.
As the seasons change, St. Anton transforms into a summer haven, inviting guests to explore the mountains through hikes and mountain biking tours. The town offers a variety of attractions, including swimming pools, archery, yoga sessions, guided hikes, and a nine-hole golf course with stunning mountain views.
Whether you’re seeking the thrill of winter sports or the tranquillity of summer hikes, Apartment Kristall in St. Anton promises a magical escape with an abundance of activities to create lasting memories in every season.
| All-Year Activities | Winter Activities | Summer Activities |
|---|---|---|
|
– Ice Skating – Mountaineering – Tennis – Squash – Volleyball – Climbing and Bouldering – Swimming – Horse Riding – Bowling – Yoga and wellness – Heritage Tours – Fitness Courses |
– Skiing – Ski Off Piste – Ski Touring – Snowboarding – Cross Country Skiing – Ice Climbing – Dog Sledging – Heliski – Snowshoeing – Speed Riding – Pedestrian and snowshoer walks – Adaptive Skiing – First tracks skiing |
– Trekking and Hiking – Mountain Bike / eBike – Trail Running – Rock Climbing – Road Cycling – Water Sports – Golf / Mini-golf – Adventure and Fun Parks – Llama and alpaca tours – Lake Swimming – Fishing – Paintballing |


































































































